We will present the performance, safe operation methods, and technical parameters of KYN61-40.5 मध्यम भोल्टेज स्विचगरर
Model and meaning
K Y N 61 - 40.5 / □ - □
└─Rated Breaking Short Circuit Current (केए)
└───Rated current (A)
└─────── Rated भिoltage (केभी)
└────────── design serial number
└ ───────────── indoors
└────────────── Removal type
└─────────────── Metal armor
Use environmental conditions
The upper limit of ambient temperature is 40°C, and the average measured value within 24 hours does not exceed 35°C.
Lower limit -15°C:
Altitude: no more than 1000 meters above sea level;
Relative humidity: daily average not more than 95%, monthly average not more than 90%;
Earthquake intensity: no more than 8 degrees;
Water vapor pressure: the daily average does not exceed 2.2kPa, and the monthly average does not exceed 90%.
Technical parameters
Main technical parameters of vacuum स्विचगेर
serial number | project | Dimensions | parameter |
1 | Rated voltage | केभी | 40.5 |
2 | Lianchang | A | 12501600 2000 |
3 | Rated frequency | Hz | 50 |
4 | Rated for short-term withstand current | केए | 20 25 31.5 |
5 | Rated peak withstand current | केए | 50 63 80 |
6 | rated power frequency withstand voltage | केभी | 95/1 min |
7 | Rated lightning shock withstand voltage | केभी | 185 |
8 | Rated short circuit duration | S | 4 |
9 | Protection level | IP3X |
Main technical parameters of vacuum circuit breaker
serial number | project | Weaving position | parameter |
1 | Rated voltage | केभी | 40.5 |
2 | Rated frequency | Hz | 50 |
3 | rated power frequency withstand voltage | केभी | 95/lmin |
4 | Rated lightning shock withstand voltage | केभी | 185 |
5 | Rated current | A | 12501600 2000 |
6 | Rated for short-term withstand current | केए | 20 25 31.5 |
7 | Rated short-circuit breaking current | KA | 20 25 31.5 |
8 | Rated peak withstand current | केए | 50 63 80 |
9 | Rated short circuit duration | ms | 4 |
10 | Opening time | ms | 30 S 1 W 60 |
11 | Hehe time | ms | 50 & t W 】00 |
12 | 88 The number of times the current is interrupted in a fixed short circuit | times | 20 |
13 | Mechanical life | times | 10000 |
The main technical parameters of spring operation machinery
name | unit | numeric value | |
रेटेड अपरेटिंग भोल्टेज | Split coil | भि | DC220/110 AC220/110 |
Closing coils | |||
Rated operating current | Split coil | A | O.96(22Oभि)1.O5I11Oभि) |
Closing coils | |||
Energy storage motor power | W | 230 | |
Energy storage motor rated voltage | भि | DC220/110 AC220/110 | |
Energy storage time | S | w 12 |
Structural characteristics of स्विचगेर
स्विचगेयर GB3906--1991 र IEC298 मापदण्डहरू अनुसार बख्तरबन्द धातु-बन्द स्विचगेयरको लागि डिजाइन गरिएको हो। सम्पूर्ण दुई भागहरू मिलेर बनेको छ: मन्त्रिपरिषद् र निकाल्न योग्य भाग (ह्यान्डकार्ट)। क्याबिनेट संरचना पूर्वनिर्धारित र सँगै बोल्टेड छ। स्विचगरको भित्री भाग सर्किट ब्रेकर कोठामा विभाजित गरिएको छ, मुख्य बसबार कोठा, एक केबल कोठा र धातु विभाजनको साथ रिले उपकरण कोठा। घेराको सुरक्षा स्तर IP3X पुग्छ, प्रत्येक डिब्बे बीचको सुरक्षा स्तर IP2X हो, र सबै धातु संरचनात्मक भागहरू विश्वसनीय रूपमा आधारित छन्, र मुख्य सर्किट प्रणालीको प्रत्येक डिब्बेको एक स्वतन्त्र निकास प्रेशर रिलीज च्यानल हुन्छ।
1. Enclosure and partition
स्विचजियरको शेल र विभाजन चिसो-रोल्ड स्टील प्लेटहरूसँग मिलेर बोल्ड हुन्छन् र सीएनसी मेशिनले पनि प्रोसेस गरे पछि एल्स त्यसकारण, भेला गरिएको स्विचगरले संरचनात्मक आयामहरूको समानता सुनिश्चित गर्न सक्दछ। स्विचगेयर सर्किट ब्रेकर कोठामा विभाजित गरिएको छ, मुख्य बसबार कोठा, एक केबल कोठा र रिले उपकरण कोठा, र प्रत्येक भाग ग्राउन्ड धातु विभाजन द्वारा अलग गरिएको छ।
2. Handcart
ह्यान्डकार्टहरू सर्किट ब्रेकर ह्यान्डकार्ट, भोल्टेज ट्रान्सफार्मर ह्यान्डकार्ट, मिटर ह्यान्डकार्टमा विभाजन गर्न सकिन्छ, अलगाव ह्यान्डकार्टहरू, आदि। उद्देश्य अनुसार छ
ह्यान्डकार्टको परीक्षण / अलगाव स्थिति र मन्त्रिपरिषद्मा कार्य स्थिति छ, र प्रत्येक स्थिति संयुक्त चाँदीको उपकरणले सुसज्जित छ कि ह्यान्डकार्टलाई आकस्मिक रूपमा सार्न सकिँदैन जब यो माथि छ। दुई स्थानहरू।
3. Circuit breaker compartment
विशेष ट्र्याकहरू सर्किट ब्रेकर डिब्बा भित्र ह्यान्डकार्ट सार्नको लागि सर्किट ब्रेकर डिब्बामा स्थापना गरिन्छ। जब सर्किट ब्रेकर परीक्षण स्थितिको काम गर्ने स्थितिहरू बीच सर्छ, अलगाव फ्ल्याप स्वचालित रूपमा खोलिन्छ वा बन्द हुन्छ, जुन सुनिश्चित गर्दछ कि कर्मचारीले हुँदैनन्
चार्ज गरिएको शरीरलाई छुनुहोस्। ह्यान्डकार्ट क्याबिनेट ढोकाको साथ सञ्चालन गर्न सकिन्छ, र ह्यान्डकार्ट हेर्ने विन्डो मार्फत मन्त्रिपरिषद्मा देख्न सकिन्छ, साथै ह्यान्डकार्टमा कुनै प्रकार्य संकेतहरू।
4. Busbar chamber
मुख्य बस एक स्विचगेयरबाट अर्कोमा शाखा बसबार र स्थिर सम्पर्क बक्सको माध्यमबाट जान्छ, जुन छेउछाउको क्याबिनेटको साइड प्यानलहरू पार गर्दा बसबार स्लीभको साथ निश्चित गरिएको छ। सबै बसबारहरू कम्पोजिट इन्सुलेसन द्वारा इन्सुलेट गरिन्छ।
5. Cable compartment
PT, ground switch, surge arrester and multiple cables can be installed in the cable room.
6. Relay room
रिले चेम्बर प्लेट र प्यानल माध्यमिक कम्पोनेन्टहरू जस्तै नियन्त्रण, सुरक्षा तत्वहरू, मिटरिंग, प्रदर्शन उपकरण, प्रत्यक्ष अनुगमन सूचक, आदि।
7. Interlock device
The स्विचगेर has a reliable interlock device to ensure the safety of operators and equipment:
![]() | ![]() | ![]() |
| Promote interlocking installation | KYN61-40.5(Z) Armored Handcart Cabinet | Grounding switch |
जब ग्राउन्डि स्विच उद्घाटन स्थितिमा छ, ह्यान्डकार्टलाई परीक्षण / अलगाव स्थितिबाट कार्य स्थितिमा सार्न सकिन्छ: र पछाडिको ढोका खोल्न सकिँदैन, जसले गल्तीले प्रत्यक्ष अन्तरालमा प्रवेश गर्न रोक्दछ।
जब ह्यान्डकार्ट पूर्ण रूपमा मन्त्रिपरिषद्बाट बाहिर तानिन्छ वा जब ह्यान्डकार्ट क्याबिनेटमा परीक्षण / अलगाव स्थितिमा आधारित हुन्छ। लक र अनलकर खोल्नुहोस्, ग्राउन्डि स्विच बन्द गर्न सकिन्छ; जब ह्यान्डकार्ट काम गर्ने स्थितिमा हुन्छ, ग्राउन्डिंग स्विच बन्द गर्न सकिदैन। यसले ग्राउन्डि स्विचको प्रत्यक्ष गलत जडान रोक्छ र बहु-हात कार्टलाई काम गर्ने स्थितिमा सर्नबाट रोक्छ स्विच बन्द स्थितिमा छ।
सर्किट ब्रेकर ह्यान्डकार्टले केवल सर्किट ब्रेकर सञ्चालन गर्न सक्दछ जब यो परीक्षण / अलगाव स्थिति वा कार्य स्थितिमा छ: र सर्किट ब्रेकरको नाम पछि, ह्यान्डकार्ट सार्न सक्दैन, जसले प्रत्यक्ष लोडलाई दुर्घटनात्मक रूपमा धकेल्न र सर्किट ब्रेकर तान्नबाट रोक्दछ। प्रत्येक मन्त्रिपरिषद् बीच इलेक्ट्रिकल इन्टरलक स्थापना गर्न सकिन्छ।
Grounding device
In the cable room, there is a separate 6x50mm2 grounding busbar, which can run through the adjacent cabinets and have good contact with the cabinets.
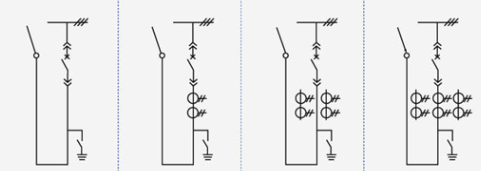
Main wiring scheme
त्यहाँ स्विचगेयरको प्राथमिक तार योजनाको लागि २ 27 सामान्यतया प्रयोग गरिएको सामान्य योजनाहरू छन्, जसले केबल प्रविष्टि र निकास लाइनहरू, ओभरहेड प्रविष्टि र निकास लाइनहरू, सम्पर्क र मापन, सुरक्षा, आदि।
Scheme number | 01 | 02 | 03 | 04 | |
Main wiring diagram | ![]() | ||||
Main electrical equipment | Rated current | 125,016,002,000 | |||
New circuit driver ZN85-40.5 | 1 | 1 | 1 | 1 | |
Current transformer LDBJ8(9)-35 | 2 | ||||
Grounding switch IN22-40.5/31.5 | 1 | 1 | 1 | 1 | |
use | Overhead out | Overhead out | Overhead out | Overhead out | |
Scheme number | 05 | 06 | 07 | 08 | |
Main wiring diagram | ![]() | ||||
Main electrical equipment | Rated current | 125,016,002,000 | |||
New circuit driver ZN85-40.5 | 1 | 1 | 1 | 1 | |
Current transformer LDBJ8(9)-35 | 2 | 3 | |||
Grounding switch IN22-40.5/31.5 | 1 | 1 | 1 | 1 | |
use | cable outlet | cable outlet | cable outlet | cable outlet | |
Scheme number | 09 | 10 | 11 | 12 | |
Main wiring diagram | ![]() | ||||
Main electrical equipment | Rated current | 125,016,002,000 | |||
New circuit driver ZN85-40.5 | 1 | 1 | 1 | 1 | |
Current transformer LDBJ8(9)-35 | 1 | 2 | 3 | ||
use | Left (right) contact | Left (right) contact | Left (right) contact | Left (right) contact | |
Scheme number | 13 | 14 | 15 | 16 | |
Main wiring diagram | ![]() | ||||
Main electrical equipment | Rated current | 125,016,002,000 | |||
New circuit driver ZN85-40.5 | |||||
Current transformer LDBJ8(9)-35 | 1 | 2 | 3 | ||
use | contact | contact | contact | contact | |
Scheme number | 17 | 18 | 19 | 20 | |
Main wiring diagram | ![]() | ||||
Main electrical equipment | Rated current | 125,016,002,000 | |||
New circuit driver ZN85-40.5 | 1 | 1 | 1 | 1 | |
Current transformer LDBJ8(9)-35 | 1 | 2 | 3 | ||
use | Cable in | Cable in | Cable in | Cable in | |
Scheme number | 21 | 22 | 23 | 24 | |
Main wiring diagram | ![]() | ||||
Main electrical equipment | Rated current | 125,016,002,000 | |||
New circuit driver ZN85-40.5 | 1 | 1 | 1 | 1 | |
Current transformer LDBJ8(9)-35 | 1 | 2 | 3 | ||
use | Overhead in | Overhead in | Overhead in | Overhead in | |
Scheme number | 25 | 26 | 27 | 28 | |
Main wiring diagram | ![]() | ||||
Main electrical equipment | Rated current | 125,016,002,000 | |||
भिoltage transformer LDX9-35 | |||||
Fuse XPNP-35 | 2 | 3 | 2 | ||
Surge arrester YH5WS-51/134Q | 3 | ||||
| रूपान्तरणकर्ता SCB9-50-35/0.4 | 1 | ||||
use | भिoltage transformer | भिoltage transformer | Station usage changed | ||
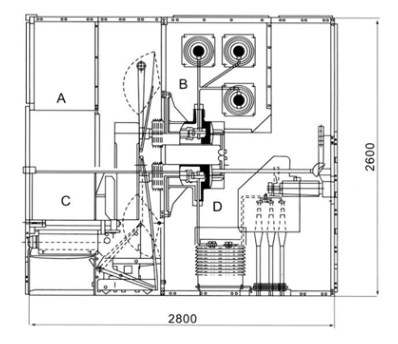
Dimensions and schematic diagram of स्विचगेर structure
![]() | ![]() |
| Dimensions (WxDxH): 1400x2800x2600 | Schematic diagram of the structure of the स्विचगेर A relay instrument room B bus room C circuit breaker room D cable |
Switch cabinet installation
1. Height of electrical room: ≥4500mm:
2. Distance from the back of the cabinet to the wall: ≥1500mm;
3. Flatness of foundation frame: ≤1mm/m?;
4. The part of the foundation embedded channel steel above the ground shall not exceed 3mm;
5. It can be fixed on the foundation by bolting or welding:
6. The weight of the स्विचगेर is about 1800Kg:
7. Width of the स्विचगेर operation corridor (single row): ≥3000mm, double row (face to face) ≥ 4000mm.
उत्पादन consistency
the main scheme number of the secondary line, the single bus system diagram, the arrangement diagram and the layout diagram;
Secondary circuit electrical schematic diagram and terminal arrangement diagram:
the model, specification and quantity of electrical components of the स्विचगेर;
Specifications and materials of main busbars and branch busbars:
Name and quantity of spare parts and spare parts:
Special requirements are agreed with the manufacturer.
उत्पाद टेक्नोलोजीको निरन्तर सुधारको कारण, सबै डाटा कारखानाको पछिल्लो प्राविधिक विभाग द्वारा पुष्टि गर्नुपर्दछ, र त्यहाँ अघिल्लो सूचना बिना परिवर्तन हुनेछ।
Ordering instructions
The user should provide the following technical information when ordering:
मुख्य तार योजना रेखाचित्र, उद्देश्य र एकल-तार प्रणाली रेखाचित्र: रेटेड भोल्टेज: मूल्या rated वर्तमान: मूल्या rated्कन छोटो सर्किट ब्रेकिंग वर्तमान: वितरण कोठा लेआउट चित्र र स्विचगेयर व्यवस्था र कन्फिगरेसन रेखाचित्र, आदि।
Indicate the specifications of the inlet and outlet cables.
Requirements for control, measurement and protection functions of स्विचगेर and other requirements for latching and automatic devices.
स्विचगरमा मुख्य विद्युतीय घटकहरूको मोडेल, विशिष्टता र मात्रा। जस्तै स्विचगेयर बीचमा! वा आउने क्याबिनेट एक बसबार ब्रिज द्वारा जडान गर्न आवश्यक छ, र विशिष्ट आवश्यकताहरू जस्तै बसबार ब्रिजको मूल्या rated्कन र भूमि उचाईबाट बसबार ब्रिजको स्प्यान प्रदान गर्नुपर्दछ ड
When स्विचगेर is used in special environments, it should be detailed at the time of ordering.
Other special requirements.
Schematic diagram of the installation of स्विचगेर

