We will present the performance, safe operation methods, and technical parameters of XGN2-12 मध्यम भोल्टेज स्विचगरर
Scope of application
XGN पोर्ट-२ बाकस प्रकार स्थिर धातु संलग्न स्विचगेयर (रिंग नेटवर्क क्याबिनेटको रूपमा सन्दर्भ) AC H० हर्ट्ज, १० केभी नेटवर्क एक ब्रेक लोड र छोटो सर्किटको रूपमा र बन्द छोटो सर्किट प्रवाहको लागि उपयुक्त छ, यो रिंग नेटवर्क क्याबिनेट लोड स्विच सञ्चालन गर्न म्यानुअल र इलेक्ट्रिक वसन्त संयन्त्रले सुसज्जित छ, र भूमि स्विच र अलगाव स्विच म्यानुअल अपरेशन संयन्त्रले सुसज्जित छ। यो रिंग नेटवर्क मन्त्रिपरिषद्को कडा पूर्ण प्रदर्शन, सानो आकार, कुनै आगो र विस्फोट जोखिम छैन, र एक विश्वसनीय "पाँच रोकथाम" प्रकार्य छ।
Use environmental conditions
The upper limit of ambient temperature is 40°C, and the lower limit is -25°°C;
The altitude does not exceed 1000m;
हवाको सापेक्ष आर्द्रताको दैनिक औसत 95%% भन्दा बढी छैन, र मासिक औसत% ०% भन्दा बढी छैन; पानीको बाफको दैनिक औसत २.२x१०--3 मेपा भन्दा बढी हुँदैन, र मासिक औसत १.8 × १०--3 मेपा भन्दा बढी छैन;
The surrounding air is not corroded or obviously polluted by combustible gases and water vapors;
No regular violent vibrations.
Model and meaning
XGN□-□-□-□/□-□
└──Rated Thermal Stable Current (केए)
└──Rated current (A)
└──Operation method (J spring operation D electromagnetic operation.)
└── One plan number
└──Rated voltage
└──Design serial number
└──Indoors
└──Fixed
└──Box type
Use environmental conditions
◆Upper limit of ambient temperature 40°C lower limit -25°C (indoor):
◆Allocation 1000m;
(जब पानी उचाई १००० मिटर भन्दा बढी हुन्छ, यो DUT593-१-19 6 of को प्रावधान अनुसार कार्यान्वयन हुनेछ tchgear ");
◆The daily average of relative humidity is not greater than 95%, and the monthly average is not greater than 90%:
the intensity of ground tremors does not exceed 8 degrees;
◆ No fire, explosion hazard, serious pollution, chemical corrosion and violent perturbation place.
The main technical parameters of the स्विचगेर
serial number | project | unit | data |
1 | Rated voltage | केभी | 3、6、10 |
2 | Maximum operating voltage | केभी | 3.5、8.9、11.5 |
3 | Rated current | A | May-00 |
4 | Rated breaking current | केए | 16.20、31.5、40 |
5 | Rated Short Circuit Engagement (Rated Short Circuit Off Current) | केए | 40、50、80.100 |
6 | Rated short-circuit thermal stabilization current | केए | 16.20、31.5、40 |
7 | Rated for thermally stable current | केए | 40、50、80、100 |
8 | Rated thermal settling time | s | 4 |
9 | Protection level | IP | IP2X |
10 | Busbar system | - | Single busbar, next to the single busbar |
11 | How it works | - | Electromagnetic type, spring energy storage type |
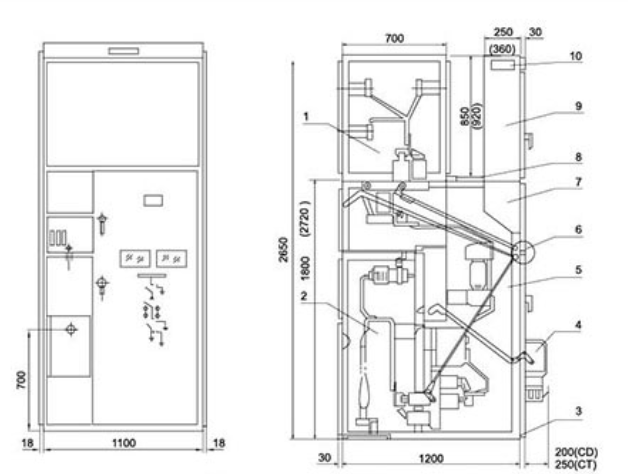
12 | Dimensions (width, × depth, × height). | mm | 1100×1200×2650 (below 1000A). |
13 | weight | kg | 1000 |
Structure and anti-error device
structure
मन्त्रिपरिषद् एक धातु संलग्न आर्मर्ड संरचना हो, क्याबिनेट कंकाल कोण स्टील द्वारा वेल्ड गरिएको छ, र क्याबिनेट एक सर्किट ब्रेकर कोठा, बसबार कोठा, केबल कोठा, र रिले कोठामा विभाजित गरिएको छ, र क्याबिनेटमा मुख्य कम्पोनेन्टहरूको अपरेशन अवलोकन विन्डो र फ्याडेमा प्रकाश मार्फत अवलोकन गर्न सकिन्छ। स्विचगेयरको प्राविधिक प्रदर्शन सुधार गर्न, मुख्य कम्पोनेन्टहरू (जस्तै सर्किट ब्रेकरहरू, विच्छेदन स्विच, आदि) पुन: डिजाइन गरिएको छ।
क्याबिनेटको लेआउटको अनुसार रिले कोठा रिलेको साथ स्थापना गरिएको छ, ढोका संकेत रिले, सूचक उपकरण, संकेत प्रकाश, ट्रान्सफर स्विच स्थापना र अपरेशन कक्षको साथ सुसज्जित गर्न सकिन्छ, पछाडि बसबार कोठा हो, तल्लो भाग केबल कोठा हो, प्रयोगकर्ता सजिलै तार गर्न सक्दछ। अगाडि सर्किट ब्रेकर कोठा हो, जसले स्विचगेयरको मर्मतलाई सहयोग पुर्tenयाउँछ। मन्त्रिपरिषद्को आन्तरिक संयन्त्र चित्र १, चित्र २ र उत्पाद म्यानुअलमा देखाइन्छ।
Error prevention device
"पाँच रोकथाम" प्रकार्यहरू हुन्: गलत विच्छेदन र सर्किट ब्रेकरको गलत जडान रोक्न; लोडको साथ विच्छेदन स्विचको गलत परिचय र खराब रोक्नुहोस्; प्रत्यक्ष बन्द र भूमि स्विच रोक्नुहोस्; जमिन खुल्दा र बन्द हुँदा पावर आपूर्ति खोल्नबाट रोक्नुहोस्; प्रत्यक्ष अन्तरालमा दुखद रोक्दछ।
यस स्विचजियरले अनिवार्य मेकानिकल लक विधि अपनाउँदछ, र एन्टि-त्रु उपकरण मुख्य कम्पोनेन्टहरू मिलेर बनेको छ, डिस्कहरू, प्यानलहरू, लक गर्ने प्लेटहरू, ह्यान्डलहरू, र जडान गर्ने रडहरू, जसमा भरपर्दो प्रदर्शनको विशेषताहरू छन्, पूर्ण प्रकार्यहरू, सरल संरचना र सजिलो अपरेसन, ताकि ' पाँच रोकथाम "सरल र प्रभावी ढला:
(1) Control switches (KW switches) with red and green plates are used in circuit breaker schemes to prevent misdisconnection and misclosing of circuit breakers;
(२) सर्किट ब्रेकर वास्तवमै विच्छेदन भए पछि मात्र, सानो ह्यान्डल "कार्य" स्थितिबाट बाहिर तान्न सकिन्छ र "डिस्कनेक्शन लकिंग" स्थितिमा दायाँमा डायल गर्न सकिन्छ; विभाजन र अलगाव स्विचहरू बन्द गर्नुहोस्; लोड विभाजन रोक्नुहोस् र अलगाव स्विचहरू बन्द गर्नुहोस्। ल्याचिंग र एन्टि-लकिंगको विश्वसनीयतामा दोहोरो त्रुटि रोकथाम कार्यहरू छन्, त्यो हो, जब सानो ह्यान्डल "डिस्कनेक्शन र लकिंग" स्थितिमा छ, यसले मात्र बन्द गर्न र माथिल्लो र तल्लो अलगाव स्विचहरू विभाजन गर्न सक्दछ, र सर्किट ब्रेकर बन्द गर्न सक्दैन, सर्किट ब्रेकरको गलत बन्द गर्दै;
()) जब सर्किट ब्रेकर र माथिल्लो र तल्लो अलगाव स्विचहरू बन्द अवस्थामा हुन्छन् र सानो ह्यान्डल "कार्य" स्थानमा छ उपकरण, अगाडि र पछाडि मन्त्रिपरिषद् ढोका खोल्न सकिँदैन जीवित अन्तरालमा प्रवेश गर्न रोक्न;
(C) जब माथिल्लो र तल्लो अलगाव स्विच खोलिन्छ, ग्राउन्डिंग स्विच बन्द गर्न सकिदैन, र सानो ह्यान्डल "ब्रेक-लक" स्थिति बाट "समर्मत" स्थितिमा डायल गर्न सकिँदैन, जसले प्रत्यक्षलाई मैदानमा झुण्ड्याउनबाट रोक्न सक्छ;
()) यदि ग्राउन्डि स्विच खोलिएको छैन भने माथिल्लो र तल्लो अलगाव स्विचहरू बन्द गर्न सकिदैन, जसले ग्राउन्डिंग तारको साथ विच्छेदन स्विचहरूलाई बन्द गर्नबाट रोक्न सक्छ।
XGN□ - 12/07D outline (Fig. 1)

1. Busbar room 2. Cable room 3. Grounding bus 4. Electromagnetic (spring) mechanism 5. New circuit device room
6. Manual operation and joint sales mechanism 7. Operation chamber 8. Pressure release channel 9. Instrument room 10. Small bus terminal
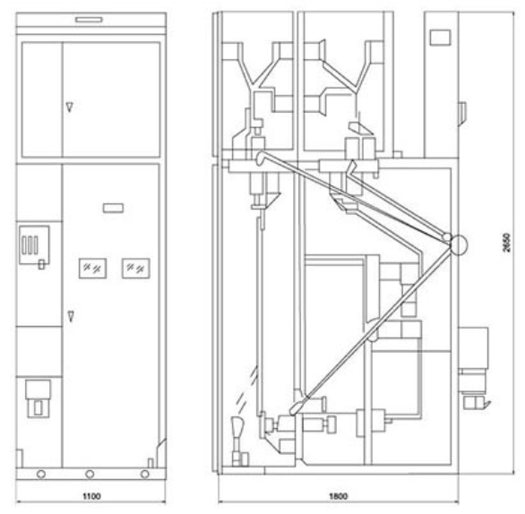
XGN-12 (bypass cable outlet) outline (Fig. 2)

Dimensions installation drawing


