हामी प्रदर्शन, सुरक्षित अपरेशन विधिहरू, र HXGN-12 मध्यम भोल्टेज स्विचगरको प्राविधिक प्यारामिटर प्रस्तुत गर्नेछौं।
1. Scope of use

HXGN□-१२ (एफ। आर) बक्स-प्रकार स्थिर एसी मेटल संलग्न स्विचगेर ("रिंग नेटवर्क क्याबिनेट" भनेर चिनिन्छ) एक नयाँ प्रकारको स्विचगर हो शहरी पावर ग्रिडहरूको नविकरण र निर्माणको लागि डिजाइन गरिएको। यो एक ब्रेकिंग लोड प्रवाह, छोटो सर्किट वर्तमान र बिजुली आपूर्ति प्रणालीमा क्लोजिंग डिश प्रवाहको रूपमा पनि प्रयोग गरिन्छ, र AC-१० केभी, H० हर्ट्ज पावर वितरण प्रणालीको लागि उपयुक्त छ। यो शहरी पावर ग्रिड निर्माण र नविकरण परियोजनाहरू, औद्योगिक र खनन उद्यमहरू, उच्च उचाइ भवनहरू र सार्वजनिक सुविधाहरूमा व्यापक रूपमा प्रयोग गरिन्छ, आदि, रिंग नेटवर्क पावर आपूर्ति इकाई र टर्मिनल उपकरणको रूपमा, विद्युतीय उपकरणहरूको विद्युतीय वितरण, नियन्त्रण र संरक्षणको भूमिका खेल्दै, र पूर्व-स्थापना गरिएको सबस्टेसनमा पनि स्थापना गर्न सकिन्छ। यो रिंग नेटवर्क क्याबिनेट भ्याकुम लोड स्विच र वसन्त अपरेशन संयन्त्रले सुसज्जित छ, जुन म्यानुअल वा विद्युतीय रूपमा संचालन गर्न सकिन्छ। ग्राउन्डि स्विच र अलगाव स्विच म्यानुअल अपरेशन संयन्त्रहरूको साथ सुसज्जित छ, र यस रिंग नेटवर्क क्याबिनेटको पूर्ण सेट बलियो र सानो छ। दहन र विस्फोटको कुनै जोखिम छैन, र यसको भरपर्दो "पाँच रोकथाम" प्रकार्य छ। यो रिंग नेटवर्क मन्त्रिपरिषद् GB3960० "3 ~ K35KV AC मेटल स्विचगेयर" र IEC60420० को प्रावधानको अनुरूप छ। हाई भोल्टेज एसी लोड स्विच-फुस संयोजन इलेक्ट्रिकल उपकरणहरू "मानक।
2. Model and its meaning
HXGN□-12(F.R)
H: Ring network
X: Box type
G: Stationary
N: Indoor
□: Design serial number
12: Rated voltage
(F.R): Load switch-fuse combination
3. Normal conditions of use
1. Ambient air temperature: -15. 0 40℃;
2. Altitude: 1000m and below;
दैनिक औसत 95% भन्दा बढी हुँदैन, दैनिक औसत पानी बाफ दबाब २.२ केपीए भन्दा बढी हुँदैन, मासिक औसत% ०% भन्दा बढी हुँदैन, र मासिक औसत पानीको बाफ दबाब L 8 kPa भन्दा बढी हुँदैन;
4. Earthquake intensity: no more than 8 degrees;
5. There are no obvious pollutants such as corrosive or flammable gases.
नोट: यदि प्रयोगको माथिको सामान्य सर्तहरू पार गरियो भने, प्रयोगकर्ताले कम्पनीसँग वार्ता गर्न सक्दछ।
4. Main technical parameters
serial number | name | unit | data | |
1 | Rated voltage | KV | 12 | |
2 | Rated current | Load स्विचगेर | A | 630 |
Combined स्विचगेर | 125 | |||
3 | Rated short-circuit breaking current | KA | 31.5 | |
4 | Rated active load breaking current | A | 630 | |
5 | Rated for short-term withstand current | KA | 20 | |
6 | Rated peak withstand current | KA | 50 | |
7 | The rated power frequency is rated to withstand voltage interphase, ground/break | KV | 42/48 | |
8 | Lightning shock is resistant to voltage phase, ground/break | KV | 75/85 | |
9 | Mechanical life | times | 10000 | |
10 | Rated Handover Current (Combined Appliances) | A | 3150 | |
11 | How it works | Manual or electric | ||
12 | Protection level | IP3X | ||
5. Structural characteristics (as shown in Figure 2 and Figure 3)
1. Structural performance characteristics
१.१.१ रिंग नेटवर्क क्याबिनेटले MMF प्रोफाइल अपनाउँछ, र सम्पूर्ण फ्रेम मोड्युलस प्वाल B = २ (tan) को साथ स्थापना गरिएको छ।
L1.2 रिंग नेटवर्क क्याबिनेट FZN21-12D लोड स्विच वा FZRN21-12D फ्यूज संयोजन इलेक्ट्रिकल अनुप्रयोगको साथ सुसज्जित छ लाइन्स, जससँग एक अलगाव स्विच, एक भ्याकुम लोड स्विच, र ग्राउन्डि स्विच, र विच्छेद स्विच र ग्राउन्डिंग स्विचमा स्पष्ट ब्रेकहरू छन्।
१,3 अलगाव स्विच, भ्याकुम लोड स्विच, ग्राउन्डिंग स्विच, र क्याबिनेट ढोकासँग उत्तम र भरपर्दो खन्ने र इन्टरलकिंग उपकरणहरू छन्, जसले प्रभावकारी रूपमा गलत कार्यरत रोक्न सक्छ र सुरक्षित रखरखाव सुनिश्चित गर्न सक्छ।
1.1.4 It can be operated manually and electrically.
१. एल मापन क्याबिनेटको मन्त्रिपरिषद् ढोका र उपकरण ढोका सिलिंग पिनले सुसज्जित छन्।
१.१.6 फ्यूज संयोजन विद्युतीय क्याबिनेट र फायरिंग पिनको साथ पग्ल ट्यूब। छोटो सर्किटको मामलामा, फायरिंग पिनले द्रुत खोल्ने र ब्रेकिंग प्राप्त गर्न ट्रिपिंग संयन्त्रमा हिट गर्दछ, जसले विद्युतीय उपकरणलाई प्रभावकारी रूपमा रक्षा गर्न सक्छ।
1.L 7 ring mesh cabinet adopts front operation, reliable wall installation.
2. "Five prevention" locking function
२.१ पावर प्रसारण अपरेशन: मात्र जब मन्त्रिपरिषद् ढोका बन्द र लक हुन्छ, र ग्राउन्ड स्विच "खुला" स्थितिमा संचालित हुन्छ, लोड स्विच स्थिति बन्द गर्न सकिन्छ।
२.२.२ पावर आउट अपरेशन: जब लोड स्विच पृथक स्थितिमा हुन्छ, ग्राउन्डिंग स्विच बन्द गर्न सकिन्छ, र जब ग्राउन्डि स्विच बन्द स्थितिमा हुन्छ, इन्सुलेशन विभाजन क्याबिनेट ढोका खोल्नको लागि ठाउँमा सम्मिलित हुन्छ।
२.१। 3 भ्याकुम अवरोधकर्ता भरपर्दो रूपमा अलगाव चक्कुसँग सम्बन्धित छ, र अलगाव चक्कु र ग्राउन्डिंग चक्कु एक अर्कासँग जोडिएको छ र मन्त्रिपरिषद्को ढोकासँग सम्बन्धित छ, र इन्सुलेटिंग विभाजन पनि मन्त्रिपरिषद्को ढोकासँग मिल्छ।
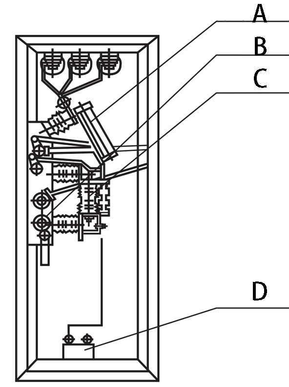
![]() | Figure 2 A: Insulator B: Through the wall casing C: Operating mechanism D: Grounding switch |
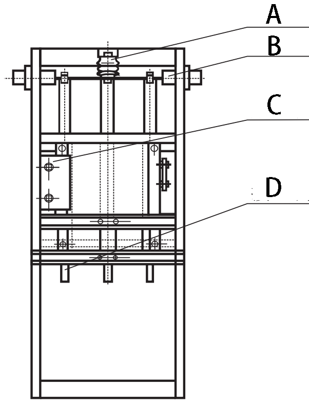
![]() | Figure 3 A: Fuse (isolation knife gate) B: Bullet control mechanism C: Load switch D: Current transformer |
6. The principle of ring network power supply
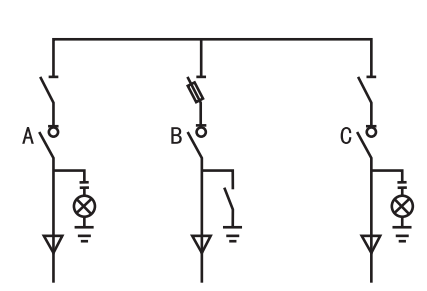
रिंग सञ्जाल पावर आपूर्ति < तीन आधारभूत एकाइहरू समावेश गर्दछ (चित्र हेर्नुहोस्) इनलेट र आउटलेट लाइन क्याबिनेटहरू रिंग नेटवर्क इकाईहरूको रूपमा प्रयोग गरिन्छ, जुन समयमा पृथक गर्न सकिन्छ जब कुनै गल्ती हुन्छ, र अर्को एकाईले प्रयोगकर्ताको ट्रान्सफार्मर शाखाको निरन्तर पावर आपूर्ति सुनिश्चित गर्दछ। प्रयोगकर्ता लूप नेटवर्क क्याबिनेटले ट्रान्सफार्मरलाई सुरक्षा र अलग गर्न भूमिका खेल्छ, जुन मर्मत र ओभरहलको लागि सुविधाजनक छ। रिंग नेटवर्क मनमानी रूपमा विस्तार गर्न सकिन्छ, र प्रयोगकर्ताको आवश्यकता अनुसार आधारभूत एकाइहरूबाट विभिन्न संयोजन योजनाहरूबाट बनेको हुन सक्छ।
![]() | ||
| केबल इनलेट र आउटलेट लाइन क्याबिनेट प्रयोगकर्ता ट्रान्सफार्मर शाखा क्याबिनेट केबल प्रविष्टि र निकास लाइन क्याबिनेट |
7. Main circuit scheme diagram
Scheme number | 01 | 02 | 03 | 04 | 05 | 06 |
Main circuit scheme diagram | ![]() | |||||
use | Cable in and out of the line | Cable in and out of the line | Cable in and out of the line | Cable in and out of the line | Cable in and out of the line | Cable in and out of the line |
Isolation/load/combination appliances | GN□-12D | GN□-12D | GN□-12D | FZN21-12D | FZN21-12D | FZN21-12D |
Fuse | RN3 | RN3 | ||||
Current transformer | LZZBJ9 | LZZBJ9 | ||||
arrester | HY5W | |||||
Scheme number | 07 | 08 | 09 | 10 | 11 | 12 |
Main circuit scheme diagram | ![]() | |||||
use | Cable in and out of the line | Cable in and out of the line | Cable in and out of the line | Cable in and out of the line | Cable in and out of the line | Cable in and out of the line |
Isolation/load/combination appliances | FZN21-12D | FZN21-12D | FZN21-12D | FZN21-12D | FZN21-12D | GN□-12D |
Fuse | RN2 | RN2 | RN2 | |||
Current transformer | LZZBJ9 | LZZBJ9 | LZZBJ9 | LZZBJ9 | ||
Voltage transformer | JDZ | JDZ | JDZ | |||
arrester | HY5W | HY5W | HY5W | |||
Scheme number | 13 | 14 | 15 | 16 | 17 | 18 |
Main circuit scheme diagram | ![]() | |||||
use | metering cable inbound and outbound lines | Cable in and out of the line | Cable in and out of the line | Cable in and out of the line | metering cable inbound and outbound lines | Overhead incoming cable outlet |
Isolation/load/combination appliances | FZRN21-12 | FZRN21-12D | FZRN21-12D | FZRN21-12D | GN□-12D | |
Fuse | RN2 | S□LAJ | S□LAJ | S□LAJ | RN2 | RN3 |
Current transformer | LZZBJ9 | LZZBJ9 | LZZBJ9 | LZZBJ9 | ||
Voltage transformer | JDZ | JDZ | ||||
Scheme number | 19 | 20 | 21 | 22 | 23 | 24 |
Main circuit scheme diagram | ![]() | |||||
use | Overhead incoming cable outlet | Overhead incoming cable outlet | Overhead incoming cable outlet | Overhead incoming cable outlet | Overhead incoming cable outlet | Overhead incoming cable outlet |
Isolation/load/combination appliances | FZRN21-12D | FZRN21-12D | FZRN21-12D | FZRN21-12D | FZRN21-12D | FZRN21-12D |
Fuse | S□LAJ | S□LAJ | S□LAJ | S□LAJ | ||
Current transformer | LZZBJ9 | LZZBJ9 | LZZBJ9 | LZZBJ9 | ||
Voltage transformer | ||||||
Scheme number | 25 | 26 | 27 | 28 | 29 | 30 |
Main circuit scheme diagram | ![]() | |||||
use | contact | contact | Measurement and liaison | Measurement and liaison | Overhead line contact | Overhead line contact |
Isolation/load/combination appliances | FZRN21-12 | FZRN21-12D | FZRN21-12D | FZRN21-12 | ||
Fuse | S□LAJ | RN2 | RN2 | S□LAJ | ||
Current transformer | LZZBJ9 | LZZBJ9 | ||||
Voltage transformer | JDZ | JDZ | ||||
8. Shape and installation size
1. The overall size of the ring network cabinet
![]() | ![]() | Cabinet width direction |
| Description: The height can be selected | cabinet depth direction |
2. Installation size of ring network cabinet
![]() |
| Note: The channel steel should be reliably grounded |
